Villa a schiera d'angolo in vendita

Tezze Sul Brenta, Via Sole - Belvedere
€ 290.000
4 locali 4 locali
207 Mq 207 Mq
3 bagni 3 bagni

Villa a schiera d'angolo in vendita

Tezze Sul Brenta, Via Sole - Belvedere

Descrizione annuncio

NOSTRA ESCLUSIVA!!!

VILLETTA A SCHIERA DI TESTA A BELVEDERE DI TEZZE SUL BRENTA

UBICAZIONE E CONTESTO

Nella frazione di Belvedere proponiamo una villetta a schiera in un contesto residenziale di 8 unità ognuna indipendente dalle altre.

L'immobile si trova in una posizione strategica in quanto vicinissimo alla SS47 che collega Bassano del Grappa - Cittadella - Padova.

Molto comodi si hanno anche i principali servizi come farmacia, supermercati, pizzerie, bar e le fermate dei mezzi di trasporto pubblici.

COMPOSIZIONE DELL'IMMOBILE

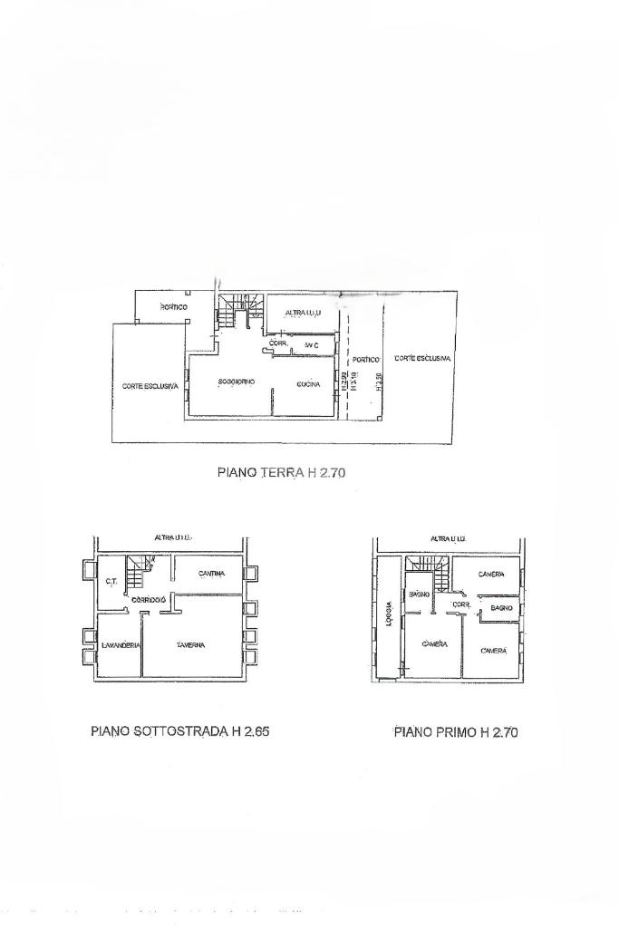
L'abitazione si sviluppa su tre piani: piano terra, primo piano, interrato ed ha un'esposizione su tre lati Sud-Est-Ovest.

Partendo dal piano terra troviamo la luminosissima zona living composta da soggiorno e cucina openspace. Si tratta di un'ambiente ampio di più di 50mq che da la possibilità di poter accogliere ospiti o godere di momenti di relax in famiglia.

A completare il piano si ha un primo bagno di servizio finestrato.

La zona notte invece si sviluppa interamente al piano primo ed è composta da due camere matrimoniali, di cui una con bagno in suite con doccia walk in, e una terza camera doppia.

Anche questo piano ha un ulteriore bagno comune finestrato con doccia.

Nell'interrato troviamo la lavanderia, una stanza adibita a ripostiglio, la cantina e una taverna di circa 30mq.

Per quanto riguarda gli spazi esterni si ha un giardino piastrellato nel retro che da accesso al box auto del piano terra. Questa parte di giardino è munita di una pompeiana che da la possibilità di ricavare ulteriori posti auto coperti.

Nella parte frontale all'abitazione si il giardino con erba gradevole per passare del tempo all'aria aperta.

Infine al primo piano troviamo un terrazzo loggiato.

PARTICOLARITA'

- L'immobile è stato edificato a fine anni '90, ma negli ultimi anni sono state fatte delle ristrutturazioni importanti come tetto, bagni, fognature e pitture esterne.

- E' presente l'allarme perimetrico.

-L'immobile verrà cosegnato a Novembre 2026

CONTATTI
Chiamaci al numero 0424 898456 o 3491441990 . Seguiteci su facebook, cliccando 'mi piace' alla pagina Tecnocasa Tezze sul Brenta o su instagram seguendo @tecnocasatezzesb. Scaricate gratuitamente l'App. Tecnocasa sul vostro smartphone e sarete sempre aggiornati sulle nostre proposte di vendita.

Mostra tutto

Nelle vicinanze

Trasporto pubblico Trasporto pubblico
Rossano Veneto
Rossano Veneto
2,4 Km
Belvedere di Tezze
Belvedere di Tezze
540 m
Noviziato
Noviziato
760 m
Ricariche auto elettriche Ricariche auto elettriche
Villa Solaris Hotel & Residence
1,1 Km
Scuole Scuole
Scuole
300 m
Scuola Elementare Francesco d'Assisi
1,0 Km
Scuola primaria Statale "Marco Polo"
2,1 Km
Scuola Elementare
2,8 Km
Farmacia Farmacia
Farmacia Dr. Berto
770 m
Farmacia Peserico
1,8 Km
Farmacia dott. Favarin
2,2 Km
Supermercati Supermercati
Prix Quality
640 m
Alìper Cusinati di Tezze
1,2 Km
Supermercati
2,1 Km
Negozi Negozi
Caseificio San Rocco
460 m
Lei + Lui di Meneghetti Maria e C. s.n.c.
2,3 Km
Bar Bar
Cà Dolce
370 m
Bar
420 m
Madame
430 m
Bar "Il Panino"
550 m
Snack Bar Luna Blu
1,1 Km
Ristoranti Ristoranti
Villa Giustinian
940 m
Disco Pub "La Casa dei Gelsi"
1,6 Km
Trattoria alla Pigna
1,8 Km
Al Capitano
2,0 Km
Ristorante Pizzeria Birreria Boca Bona
2,1 Km
Mostra tutto

Caratteristiche

Rif.:
61164017
Piano:
3 di 3 (Piano su più livelli)
Box:
1
Posti auto:
3
Balconi:
1
Terrazzi:
1
Mostra tutto
Prezzo Prezzo
€ 290.000
Rata mutuo Rata mutuo
€ 1.366 / mese
Spese annue Spese annue
€ 120
Proponi il tuo prezzoProponi il tuo prezzo

Classe Energetica

D
D
D
D
D
D
D
D
D
EP globale non rinnovabile:
123.00 kW h/m² anno
EP globale rinnovabile:
123.00 kW h/m² anno
EP invernale del fabbricato:
EP estiva del fabbricato:
Anno di costruzione:
1996
Riscaldamento:
Autonomo
Tipo impianto:
A radiatori
Tipo alimentazione:
Metano

Ti interessa visionare l'immobile?

Fissa un appuntamento  Fissa un appuntamento

Richiedi informazioni

Clicca su Leggi per aprire l'informativa
* Questi campi sono obbligatori

Calcola il tuo mutuo

Semplice e senza impegno
Anticipo

( % )
Mutuo

( % )

pochi semplici passi

inserisci i tuoi dati
Questionario completato
Grazie per aver richiesto un appuntamento senza impegno con un nostro Consulente del Credito e Assicurativo.

Hai inserito correttamente tutti i dati necessari e a breve riceverai una e-mail con un link da convalidare per inviare i tuoi dati.
Affiliato
Studio Rpm Srl
Via Villa, 107/e 36056 Tezze Sul Brenta (VI)

Il nostro staff


  • Matteo Bonato
    Affiliato

  • Domenico Toffanello
    Responsabile
Via Villa, 107/e 36056 Tezze Sul Brenta (VI)
Zona: Tezze sul Brenta - Pozzoleone
Mostra su mappa
Orari: lunedì - venerdì 9.00/12.30 - 15.00/19.30 sabato 9.00/12.30 e pomeriggio su appuntamento
Affiliato
Studio Rpm Srl
Via Villa, 107/e 36056 Tezze Sul Brenta (VI)

2026 Tecnocasa Franchising S.p.A. - P. IVA 08365160152 - Via Monte Bianco 60/A 20089 Rozzano (MI). Ogni agenzia ha un proprio titolare ed è autonoma. Privacy policy | Policy utilizzo | Cookie policy