Villa singola in vendita

Tezze Sul Brenta, Viale Brenta - Brenta
€ 160.000
4 locali 4 locali
150 Mq 150 Mq
2 bagni 2 bagni

Villa singola in vendita

Tezze Sul Brenta, Viale Brenta - Brenta

Descrizione annuncio

NOSTRA ESCLUSIVA - VILLETTA SINGOLA A TEZZE SUL BRENTA !!!

UBICAZIONE E CONTESTO

A pochi passi dal centro cittadino del comune di Tezze sul Brenta proponiamo una soluzione abitativa indipendente sviluppata su due piani.

L'immobile si trova vicino ai principali servizi e alla fermata dei mezzi di trasporto pubblici che collegano Bassano e Vicenza.

DESCRIZIONE DELL'IMMOBILE

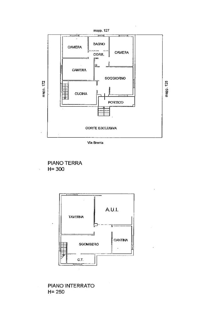
Come già anticipato la villetta si sviluppa al piano terra rialzato e nel seminterrato.

Partendo dalla zona abitativa sviluppata interamente al piano rialzato troviamo: cucina e zona living separati, bagno finestrato con vasca e tre camere da letto: una matrimoniale, una doppia ed una singola ma sempre di generose metrature.

Scendendo nel seminterrato si hanno invece una grande taverna dove organizzare eventi conviviali o da adibire a sala hobby; a completare si hanno la lavanderia finestrata con doccia, la cantina ed il garage.

PARTICOLARITA'

L'immobile è stato edifficato intorno agli anni '70 e si ha la possibilità di acquistare il capannone retrostante di circa 300mq.

CONTATTI

Chiamaci al numero 0424 898456 o 3491441990. Seguiteci su facebook, cliccando 'mi piace' alla pagina Tecnocasa Tezze sul Brenta o su instagram seguendo @tecnocasatezzesb. Scaricate gratuitamente l'App. Tecnocasa sul vostro smartphone e sarete sempre aggiornati sulle nostre proposte di vendita.

Mostra tutto

Nelle vicinanze

Trasporto pubblico Trasporto pubblico
Tezze sul Brenta - Ponte
Tezze sul Brenta - Ponte
450 m
Tezze sul Brenta - Via Brenta
Tezze sul Brenta - Via Brenta
590 m
Scuole Scuole
Scuole
1,2 Km
Farmacia Farmacia
Farmacia Binda
840 m
Supermercati Supermercati
Eurospesa supermercati
1,0 Km
Simply Market
1,1 Km
Negozi Negozi
Proposte Merceria e Intimo
1,2 Km
Zanandrea Tessuti
1,2 Km
Bar Bar
Palazzo Rosso
1,1 Km
Bar
1,7 Km
Ristoranti Ristoranti
Albergo Ristorante Centrale
650 m
Trattoria Spaghetteria Al Sole
1,7 Km
Ristorante Tre Rose
2,7 Km
Osteria di Scaldaferro
3,0 Km
Mostra tutto

Caratteristiche

Rif.:
61138812
Piano:
2 di 1 (Piano su più livelli)
Box:
1
Posti auto:
2
Balconi:
1
Terrazzi:
1
Mostra tutto
Prezzo Prezzo
€ 160.000
Rata mutuo Rata mutuo
€ 754 / mese
Spese annue Spese annue
€ 0
Proponi il tuo prezzoProponi il tuo prezzo

Classe Energetica

G
G
G
G
G
G
G
G
G
EP globale non rinnovabile:
300.00 kW h/m² anno
EP globale rinnovabile:
300.00 kW h/m² anno
EP invernale del fabbricato:
EP estiva del fabbricato:
Anno di costruzione:
1975
Riscaldamento:
Autonomo
Tipo impianto:
A radiatori
Tipo alimentazione:
Metano

Ti interessa visionare l'immobile?

Fissa un appuntamento  Fissa un appuntamento

Richiedi informazioni

Clicca su Leggi per aprire l'informativa
* Questi campi sono obbligatori

Calcola il tuo mutuo

Semplice e senza impegno
Anticipo

( % )
Mutuo

( % )

pochi semplici passi

inserisci i tuoi dati
Questionario completato
Grazie per aver richiesto un appuntamento senza impegno con un nostro Consulente del Credito e Assicurativo.

Hai inserito correttamente tutti i dati necessari e a breve riceverai una e-mail con un link da convalidare per inviare i tuoi dati.
Affiliato
Studio Rpm Srl
Via Villa, 107/e 36056 Tezze Sul Brenta (VI)

Il nostro staff


  • Matteo Bonato
    Affiliato

  • Domenico Toffanello
    Responsabile
Via Villa, 107/e 36056 Tezze Sul Brenta (VI)
Zona: Tezze sul Brenta - Pozzoleone
Mostra su mappa
Orari: lunedì - venerdì 9.00/12.30 - 15.00/19.30 sabato 9.00/12.30 e pomeriggio su appuntamento
Affiliato
Studio Rpm Srl
Via Villa, 107/e 36056 Tezze Sul Brenta (VI)

2025 Tecnocasa Franchising S.p.A. - P. IVA 08365160152 - Via Monte Bianco 60/A 20089 Rozzano (MI). Ogni agenzia ha un proprio titolare ed è autonoma. Privacy policy | Policy utilizzo | Cookie policy