Trilocale in vendita

Tezze Sul Brenta, Via Madre Teresa - Lorenzin
€ 170.000
3 locali 3 locali
96 Mq 96 Mq
1 bagno 1 bagno

Trilocale in vendita

Tezze Sul Brenta, Via Madre Teresa - Lorenzin

Descrizione annuncio

NOSTRA ESCLUSIVA!!!

UBICAZIONE E CONTESTO

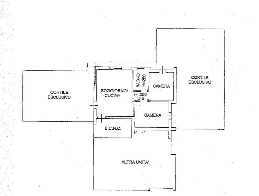
Nella frazione di Campagnari di Tezze sul Brenta, comodo ai principali servizi, proponiamo un appartamento bicamere situato al piano terra edificato a metà anni 2000 e collocato in un contesto di sole 4 unità.

COMPOSIZIONE DELL'IMMOBILE

L'appartamento si sviluppa interamente al piano terra, la zona living è un grande openspace molto luminoso in cui troviamo l'area divani e nella parte opposta la cucina attrezzata con la rispettiva sala da pranzo.

Tramite un disimpegno si accede alla zona notte composta da camera matrimoniale e camera doppia.

A completare l'immobile si ha un bagno finestrato munito di doccia.

Da ogni ambiente è possibile uscire nel giardino di proprietà che circonda l'immobile nei lati EST-OVEST-NORD. Quest'ultimo si divide in un'area piastrellata e in un'area più verde con erba.

Nell'interrato invece si hanno un box singolo di generose metrature e un locale lavanderia.

PARTICOLARITA'

- L'immobile è dotato di riscaldamento autonomo a radiatori alimentato a metano.

- E' presente il climatizzatore.

- Tetto rifatto nel 2024

-L'immobile sarà disponibile dall'autunno 2026.

CONTATTI

Chiamaci al numero 0424 898456 o 3491441990. Seguiteci su facebook, cliccando 'mi piace' alla pagina Tecnocasa Tezze sul Brenta o su instagram seguendo @tecnocasatezzesb. Scaricate gratuitamente l'App. Tecnocasa sul vostro smartphone e sarete sempre aggiornati sulle nostre proposte di vendita.

Mostra tutto

Nelle vicinanze

Trasporto pubblico Trasporto pubblico
Laghi
Laghi
350 m
Trasporto pubblico
380 m
Ricariche auto elettriche Ricariche auto elettriche
Villa Solaris Hotel & Residence
130 m
Scuole Scuole
Scuola Elementare Francesco d'Assisi
50 m
Scuole
60 m
Scuola primaria Statale "Marco Polo"
2,5 Km
Farmacia Farmacia
Farmacia Dr. Berto
290 m
Farmacia Peserico
2,4 Km
Farmacia dott. Favarin
2,5 Km
Supermercati Supermercati
Supermercati
1,2 Km
Prix Quality
1,5 Km
Alìper Cusinati di Tezze
1,9 Km
Negozi Negozi
Caseificio San Rocco
1,4 Km
Lei + Lui di Meneghetti Maria e C. s.n.c.
2,6 Km
Bar Bar
Bar
230 m
Snack Bar Luna Blu
370 m
Patronato di Laghi
480 m
Cà Dolce
1,4 Km
Madame
1,4 Km
Ristoranti Ristoranti
Ristorante Pizzeria Birreria Boca Bona
1,1 Km
Villa Giustinian
1,7 Km
Disco Pub "La Casa dei Gelsi"
2,3 Km
Trattoria alla Pigna
2,4 Km
Al Capitano
2,4 Km
Mostra tutto

Caratteristiche

Rif.:
61180236
Piano:
1 (Piano terra)
Box:
1
Posti auto:
1
Camere da letto:
1
Arredamento:
Assente
Mostra tutto
Prezzo Prezzo
€ 170.000
Rata mutuo Rata mutuo
€ 794 / mese
Spese annue Spese annue
€ 70
Proponi il tuo prezzoProponi il tuo prezzo

Classe Energetica

D
D
D
D
D
D
D
D
D
EP globale non rinnovabile:
170.00 kW h/m² anno
EP globale rinnovabile:
170.00 kW h/m² anno
EP invernale del fabbricato:
EP estiva del fabbricato:
Anno di costruzione:
2006
Riscaldamento:
Autonomo
Tipo impianto:
A radiatori
Tipo alimentazione:
Metano

Ti interessa visionare l'immobile?

Fissa un appuntamento  Fissa un appuntamento

Richiedi informazioni

Clicca su Leggi per aprire l'informativa
* Questi campi sono obbligatori

Calcola il tuo mutuo

Semplice e senza impegno
Anticipo

( % )
Mutuo

( % )

pochi semplici passi

inserisci i tuoi dati
Questionario completato
Grazie per aver richiesto un appuntamento senza impegno con un nostro Consulente del Credito e Assicurativo.

Hai inserito correttamente tutti i dati necessari e a breve riceverai una e-mail con un link da convalidare per inviare i tuoi dati.
Affiliato
Studio Rpm Srl
Via Villa, 107/e 36056 Tezze Sul Brenta (VI)

Il nostro staff


  • Matteo Bonato
    Affiliato

  • Domenico Toffanello
    Responsabile
Via Villa, 107/e 36056 Tezze Sul Brenta (VI)
Zona: Tezze sul Brenta-Rosà-Rossano Veneto-Pozzoleone-Cartigliano
Mostra su mappa
Orari: lunedì - venerdì 9.00/12.30 - 15.00/19.30 sabato 9.00/12.30 e pomeriggio su appuntamento
Affiliato
Studio Rpm Srl
Via Villa, 107/e 36056 Tezze Sul Brenta (VI)

2026 Tecnocasa Franchising S.p.A. - P. IVA 08365160152 - Via Monte Bianco 60/A 20089 Rozzano (MI). Ogni agenzia ha un proprio titolare ed è autonoma. Privacy policy | Policy utilizzo | Cookie policy