Trilocale in vendita

Tezze Sul Brenta, Via Bassano
€ 260.000
3 locali 3 locali
95 Mq 95 Mq
1 bagno 1 bagno

Trilocale in vendita

Tezze Sul Brenta, Via Bassano

Descrizione annuncio

APPARTAMENTO TRILOCALE AL PIANO TERRA DI NUOVA COSTRUZIONE

UBICAZIONE E CONTESTO

Situato a Granella, frazione del comune di Tezze sul Brenta proponiamo un appartamento situato al piano terra in una palazzina di nuova costruzione.

L'immobile si trova in un contesto tranquillo in quanto è situato in un quartiere residenziale, ma al contempo è comodo ai servizi.

Si tratta di una zona ricercata in via di sviluppo essendo ben ben collegata con le cittadine di Bassano del Grappa, Cittadella tramite le principali strade provinciali.

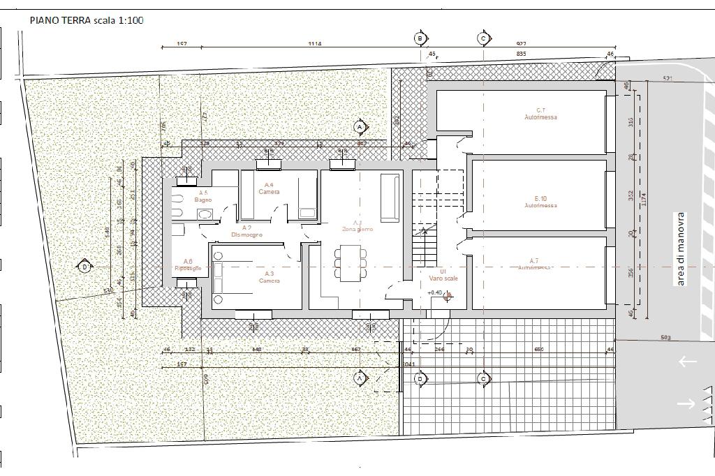
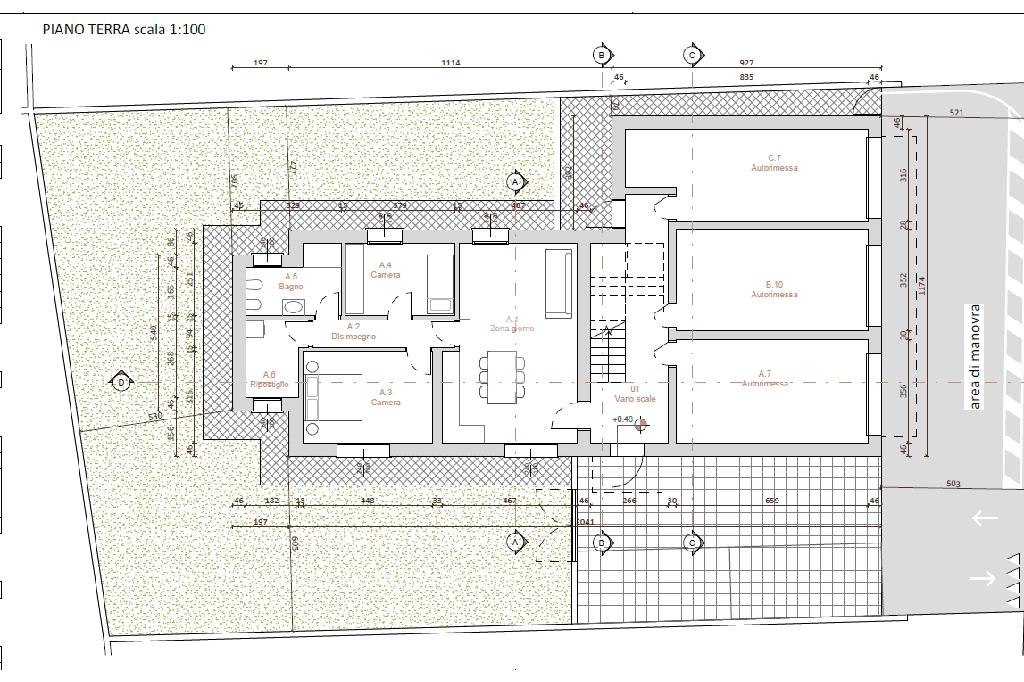
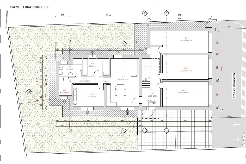
DESCRIZIONE DELL'IMMOBILE

L'appartamento è situato al piano terra e vi si accede da un entrata condominiale.

L'immobile è composto da zona giorno openspace suddivisa in cucina e zona living, una camera da letto matrimoniale, una cameretta singola e un bagno finestrato con doccia + lavanderia.

A completare l'immobile si ha un ampio giardino che circonda l'appartamento su tre lati nord-sud-ovest.

Sempre al piano vi è un box singolo con basculante elettrico sezionale.

PARTICOLARITA'

- Verrà consegnato subito chiavi in mano e in classe energetica A4.

- I serramenti hanno il triplo vetro e sono in legno.

- In tutto l'appartamento è presente il riscaldamento a pavimento.

-La palazzina è dotata di impianto fotovoltaico.

CONTATTI

Chiamaci al numero 0424 898456 o 3491441990. Seguiteci su facebook, cliccando 'mi piace' alla pagina Tecnocasa Tezze sul Brenta o su instagram seguendo @tecnocasatezzesb. Scaricate gratuitamente l'App. Tecnocasa sul vostro smartphone e sarete sempre aggiornati sulle nostre proposte di vendita.

Mostra tutto

Nelle vicinanze

Trasporto pubblico Trasporto pubblico
Cartigliano - Via Duca di Modena
Cartigliano - Via Duca di Modena
300 m
Cartigliano - Via Milano
Cartigliano - Via Milano
680 m
Scuole Scuole
Scuole
620 m
Centro Civico Scalchi
1,4 Km
Scuola Primaria Statale "Giacomo Zanella"
1,6 Km
Ex Scuola Primaria di Sant'Anna
1,8 Km
Farmacia Farmacia
Farmacia
1,7 Km
Farmacia Binda
2,5 Km
Supermercati Supermercati
Eurospesa supermercati
2,4 Km
Supermercato Sisa "Cillo"
2,8 Km
Negozi Negozi
Supermercato
1,8 Km
Negozi
2,0 Km
Bar Bar
Bar
1,4 Km
Bar Tabacchi
1,7 Km
Bar 4 Strade
1,7 Km
Martini 47
2,7 Km
Ristoranti Ristoranti
Pizza Focus
1,4 Km
Osteria Rive
1,4 Km
Trattoria da Paeto
1,6 Km
Pizzeria
1,7 Km
Pizzeria Trattoria Al Mulino
2,4 Km
Mostra tutto

Caratteristiche

Rif.:
61137924
Piano:
Terra con giardino
Box:
1
Posti auto:
1
Camere da letto:
1
Arredamento:
Assente
Mostra tutto
Prezzo Prezzo
€ 260.000
Rata mutuo Rata mutuo
€ 1.235 / mese
Spese annue Spese annue
€ 0
Proponi il tuo prezzoProponi il tuo prezzo

Classe Energetica

A4
A4
A4
A4
A4
A4
A4
A4
A4
EP globale non rinnovabile:
30.00 kW h/m² anno
EP globale rinnovabile:
30.00 kW h/m² anno
EP invernale del fabbricato:
EP estiva del fabbricato:
Anno di costruzione:
2024
Riscaldamento:
Autonomo
Tipo impianto:
A pavimento
Tipo alimentazione:
Pannelli

Ti interessa visionare l'immobile?

Fissa un appuntamento  Fissa un appuntamento

Richiedi informazioni

Clicca su Leggi per aprire l'informativa
* Questi campi sono obbligatori

Calcola il tuo mutuo

Semplice e senza impegno
Anticipo

( % )
Mutuo

( % )

pochi semplici passi

inserisci i tuoi dati
Questionario completato
Grazie per aver richiesto un appuntamento senza impegno con un nostro Consulente del Credito e Assicurativo.

Hai inserito correttamente tutti i dati necessari e a breve riceverai una e-mail con un link da convalidare per inviare i tuoi dati.
Affiliato
Studio Rpm Srl
Via Villa, 107/e 36056 Tezze Sul Brenta (VI)

Il nostro staff


  • Matteo Bonato
    Affiliato

  • Domenico Toffanello
    Responsabile
Via Villa, 107/e 36056 Tezze Sul Brenta (VI)
Zona: Tezze sul Brenta-Rosà-Rossano Veneto-Pozzoleone-Cartigliano
Mostra su mappa
Orari: lunedì - venerdì 9.00/12.30 - 15.00/19.30 sabato 9.00/12.30 e pomeriggio su appuntamento
Affiliato
Studio Rpm Srl
Via Villa, 107/e 36056 Tezze Sul Brenta (VI)

2026 Tecnocasa Franchising S.p.A. - P. IVA 08365160152 - Via Monte Bianco 60/A 20089 Rozzano (MI). Ogni agenzia ha un proprio titolare ed è autonoma. Privacy policy | Policy utilizzo | Cookie policy