Trilocale in vendita

Rossano Veneto, Viale Roma - Crearo
€ 215.000
3 locali 3 locali
90 Mq 90 Mq
1 bagno 1 bagno

Trilocale in vendita

Rossano Veneto, Viale Roma - Crearo

Descrizione annuncio

UBICAZIONE E CONTESTO

In zona centrale nel comune di Rossano Veneto proponiamo degli appartamenti situati al piano primo in una palazzina di nuova costruzione.

L'immobile si trova in un contesto tranquillo in quanto è situato in un quartiere residenziale moderno caratterizzato da silenzio e privacy.

Si tratta di una zona ricercata in via di sviluppo essendo ben ben collegata con le cittadine di Bassano del Grappa, Castelfranco Veneto, Cittadella tramite le principali strade provinciali e i mezzi di trasporto pubblici.

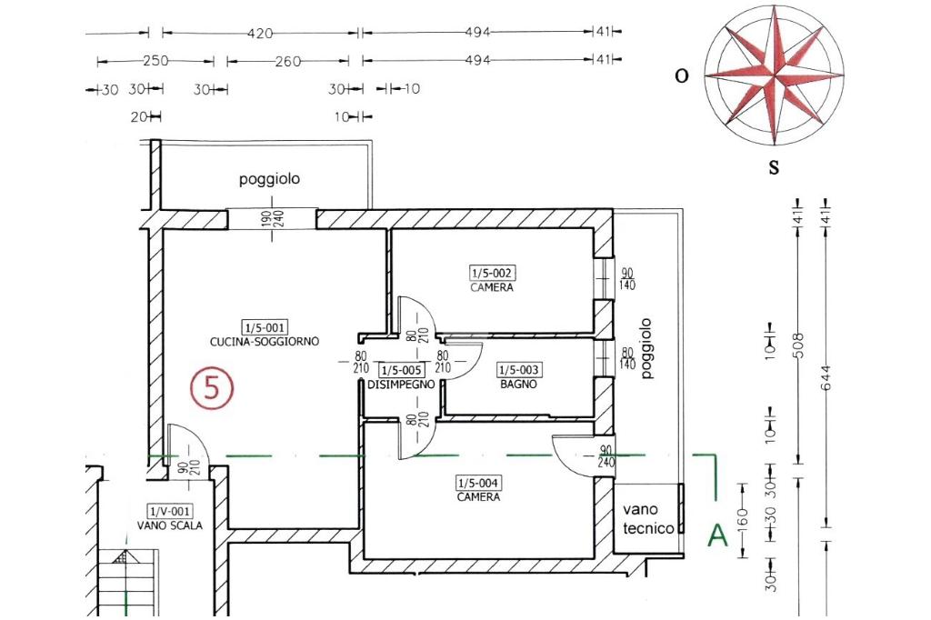
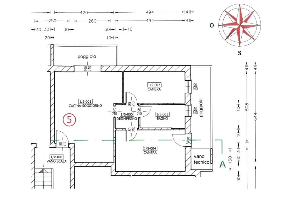
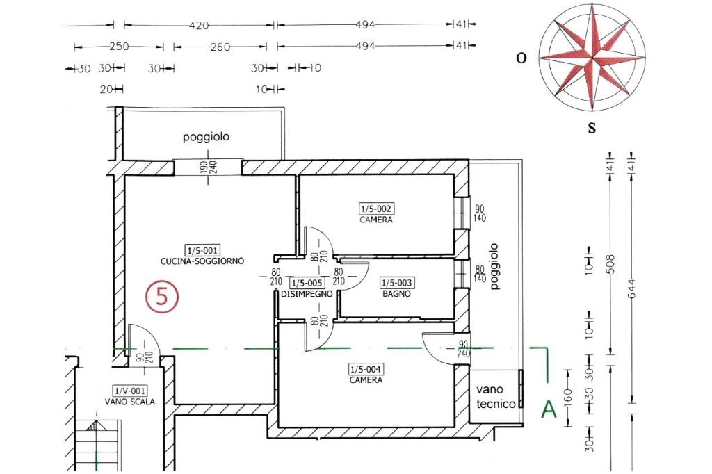
DESCRIZIONE DELL'IMMOBILE

L'appartamento è situato al piano primo e vi si accede tramite una scala condominiale.

L'immobile è composto da zona giorno openspace suddivisa in cucina e zona living, una camera da letto matrimoniale, una cameretta singola e un bagno finestrato con doccia.

A completare l'immobile si hanno due terrazzi uno che serve la zona giorno e uno che serve la zona notte.

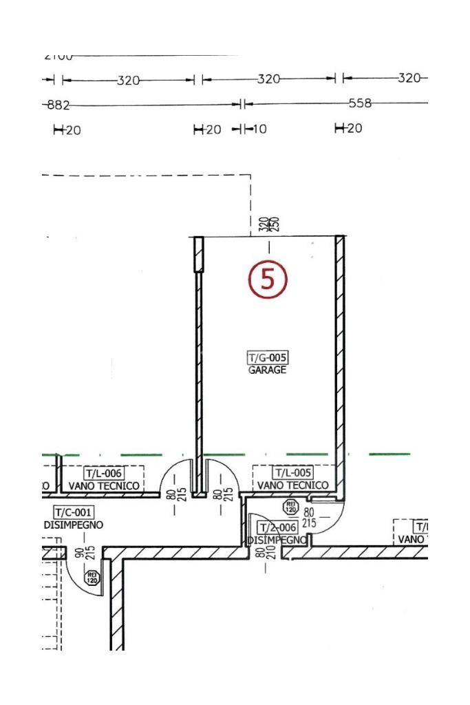
Al piano terra vi è un box singolo di ampie metrature, da cui è possibile ricavare l'ambiente lavanderia, grazie alla presenza degli scarichi.

PARTICOLARITA'

- L'immobile verrà ultimato per fine estate 2026

- Verrà consegnato chiavi in mano e in classe energetica A4

- I serramenti hanno il triplo vetro e sono in PVC

- In tutto l'appartamento è presente il riscaldamento a pavimento.

- E' possibile ricevere una copia del capitolato e fare una visita nel cantiere su appuntameno in agenzia.

CONTATTI

Chiamaci al numero 0424 898456 o 3491441990. Seguiteci su facebook, cliccando 'mi piace' alla pagina Tecnocasa Tezze sul Brenta o su instagram seguendo @tecnocasatezzesb. Scaricate gratuitamente l'App. Tecnocasa sul vostro smartphone e sarete sempre aggiornati sulle nostre proposte di vendita.

Mostra tutto

Nelle vicinanze

Trasporto pubblico Trasporto pubblico
Rossano Veneto
Rossano Veneto
1,3 Km
Rosà
Rosà
2,6 Km
Rossano Centro
Rossano Centro
60 m
Bivio Rossano
Bivio Rossano
390 m
Ricariche auto elettriche Ricariche auto elettriche
Loria Foscolo | EnelX
2,8 Km
Scuole Scuole
Istituto Comprensivo Rossano Veneto
300 m
Scuole
1,0 Km
Scuola Elementare
1,8 Km
Farmacia Farmacia
Farmacia Brunati
2,3 Km
Farmacia Peserico
2,5 Km
Farmacia Baron
2,6 Km
Supermercati Supermercati
Ali'
310 m
Coop
710 m
Alìper Cusinati di Tezze
2,7 Km
San Marco Center
2,8 Km
Prix Quality
2,8 Km
Negozi Negozi
Magazzini Bizzotto
450 m
Bar Bar
Bar
70 m
BAR PIZZERIA AL SOLE
1,0 Km
Patronato Anspi
2,4 Km
Fashion
2,6 Km
BarBie
2,9 Km
Ristoranti Ristoranti
Pizzeria La Pace
350 m
Pizzeria Al Ponte
350 m
Al Sole
370 m
Ristoranti
750 m
Pizzeria “Una Volta”
1,8 Km
Mostra tutto

Caratteristiche

Rif.:
61117417
Piano:
1 di 1 (ultimo Piano)
Box:
1
Posti auto:
1
Terrazzi:
2
Camere da letto:
1
Mostra tutto
Prezzo Prezzo
€ 215.000
Rata mutuo Rata mutuo
€ 1.021 / mese
Spese annue Spese annue
€ 300
Proponi il tuo prezzoProponi il tuo prezzo

Classe Energetica

A4
A4
A4
A4
A4
A4
A4
A4
A4
EP globale non rinnovabile:
10.00 kW h/m² anno
EP globale rinnovabile:
10.00 kW h/m² anno
EP invernale del fabbricato:
EP estiva del fabbricato:
Anno di costruzione:
2026
Riscaldamento:
Autonomo
Tipo impianto:
A pavimento
Tipo alimentazione:
Pannelli

Ti interessa visionare l'immobile?

Fissa un appuntamento  Fissa un appuntamento

Richiedi informazioni

Clicca su Leggi per aprire l'informativa
* Questi campi sono obbligatori

Calcola il tuo mutuo

Semplice e senza impegno
Anticipo

( % )
Mutuo

( % )

pochi semplici passi

inserisci i tuoi dati
Questionario completato
Grazie per aver richiesto un appuntamento senza impegno con un nostro Consulente del Credito e Assicurativo.

Hai inserito correttamente tutti i dati necessari e a breve riceverai una e-mail con un link da convalidare per inviare i tuoi dati.
Affiliato
Studio Rpm Srl
Via Villa, 107/e 36056 Tezze Sul Brenta (VI)

Il nostro staff


  • Matteo Bonato
    Affiliato

  • Domenico Toffanello
    Responsabile
Via Villa, 107/e 36056 Tezze Sul Brenta (VI)
Zona: Tezze sul Brenta-Rosà-Rossano Veneto-Pozzoleone-Cartigliano
Mostra su mappa
Orari: lunedì - venerdì 9.00/12.30 - 15.00/19.30 sabato 9.00/12.30 e pomeriggio su appuntamento
Affiliato
Studio Rpm Srl
Via Villa, 107/e 36056 Tezze Sul Brenta (VI)

2026 Tecnocasa Franchising S.p.A. - P. IVA 08365160152 - Via Monte Bianco 60/A 20089 Rozzano (MI). Ogni agenzia ha un proprio titolare ed è autonoma. Privacy policy | Policy utilizzo | Cookie policy