Trilocale in vendita

Cartigliano, Via Papa Luciani
€ 95.000
3 locali 3 locali
95 Mq 95 Mq
1 bagno 1 bagno

Trilocale in vendita

Cartigliano, Via Papa Luciani

Descrizione annuncio

NOSTRA ESCLUSIVA

UBICAZIONE E CONTESTO

Proponiamo in un contesto residenziale di Cartigliano un appartamento bicamere al secondo piano in una palazzina di 6 unità.

L'immobile è comodo ai principali servizi e alle diverse arterie di comunicazione, difatti è possibile raggiungere il comune di Bassano del Grappa in pochi minuti tramite le strade principali o con i mezzi di trasporto.

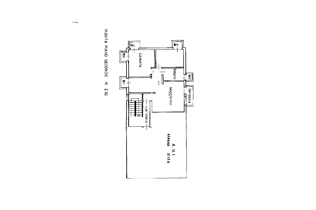
COMPOSIZIONE DELL'IMMOBILE

L'appartamento si trova al secondo piano ed è composto da un ampio living con cucina, un ambiente sala da pranzo e due camere matrimoniali. Vi è inoltre la possibilità di ricavare una terza camera da letto.

L'immobile dispone di un bagno finestrato munito sia di doccia sia di vasca da bagno.

Ogni stanza ha un proprio balcone o terrazzo e come ulteriore spazio esterno si ha un giardino privato piastrellato al piano terra.

Infine nell'interrato si ha un box singolo e una cantina.

PARTICOLARITA'

- Il riscaldamento è autonomo a metano

- E' presente il condizionatore

- L'impianto elettrico e il videocitofono è stato rifatto lo scorso anno

- La caldaia è stata anch'essa cambiata recentemente

CONTATTI

Chiamaci al numero 0424 898456 o 3491441990. Seguiteci su facebook, cliccando 'mi piace' alla pagina Tecnocasa Tezze sul Brenta o su instagram seguendo @tecnocasatezzesb. Scaricate gratuitamente l'App. Tecnocasa sul vostro smartphone e sarete sempre aggiornati sulle nostre proposte di vendita.

Mostra tutto

Nelle vicinanze

Trasporto pubblico Trasporto pubblico
Cartigliano - Viale De Gasperi
Cartigliano - Viale De Gasperi
350 m
Cartigliano - Via Duca di Modena
Cartigliano - Via Duca di Modena
420 m
Scuole Scuole
Scuole
1,6 Km
Liceo artistico Giuseppe De Fabris
1,9 Km
Scuola media Pasquale Antonibon
1,9 Km
Scuola Primaria Antonibon
2,3 Km
Nido
2,3 Km
Farmacia Farmacia
Farmacia
510 m
Parafarmacia
1,9 Km
Farmacia di Nove
2,1 Km
Supermercati Supermercati
Supermercato Sisa "Cillo"
1,8 Km
Prix Market
2,2 Km
A&O
2,3 Km
Negozi Negozi
Supermercato
590 m
Negozi
760 m
Bar Bar
Bar
470 m
Bar 4 Strade
1,6 Km
Martini 47
1,9 Km
Minibar
1,9 Km
Bar Caffè Centrale "Cafetin"
2,2 Km
Ristoranti Ristoranti
Pizza Focus
300 m
Trattoria da Paeto
410 m
Osteria Rive
670 m
Pizzeria Trattoria Al Mulino
1,3 Km
Take Away Di Catoggio Vito
2,0 Km
Mostra tutto

Caratteristiche

Rif.:
61117922
Piano:
2 di 3 (ultimo Piano)
Box:
1
Posti auto:
1
Balconi:
5
Terrazzi:
1
Mostra tutto
Prezzo Prezzo
€ 95.000
Rata mutuo Rata mutuo
€ 435 / mese
Spese annue Spese annue
€ 400
Proponi il tuo prezzoProponi il tuo prezzo

Classe Energetica

E
E
E
E
E
E
E
E
E
EP globale non rinnovabile:
155.55 kW h/m² anno
EP globale rinnovabile:
155.00 kW h/m² anno
EP invernale del fabbricato:
EP estiva del fabbricato:
Anno di costruzione:
1986
Riscaldamento:
Autonomo
Tipo impianto:
A radiatori
Tipo alimentazione:
Metano

Ti interessa visionare l'immobile?

Fissa un appuntamento  Fissa un appuntamento

Richiedi informazioni

* Questi campi sono obbligatori

Calcola il tuo mutuo

Semplice e senza impegno
Anticipo

( % )
Mutuo

( % )

pochi semplici passi

inserisci i tuoi dati
Questionario completato
Grazie per aver richiesto un appuntamento senza impegno con un nostro Consulente del Credito e Assicurativo.

Hai inserito correttamente tutti i dati necessari e a breve riceverai una e-mail con un link da convalidare per inviare i tuoi dati.
Affiliato
Studio Rpm Srl
Via Villa, 107/e 36056 Tezze Sul Brenta (VI)

Il nostro staff


  • Matteo Bonato
    Affiliato

  • Domenico Toffanello
    Responsabile
Via Villa, 107/e 36056 Tezze Sul Brenta (VI)
Zona: Tezze sul Brenta - Pozzoleone
Mostra su mappa
Orari: lunedì - venerdì 9.00/12.30 - 15.00/19.30 sabato 9.00/12.30 e pomeriggio su appuntamento
Affiliato
Studio Rpm Srl
Via Villa, 107/e 36056 Tezze Sul Brenta (VI)

2025 Tecnocasa Franchising S.p.A. - P. IVA 08365160152 - Via Monte Bianco 60/A 20089 Rozzano (MI). Ogni agenzia ha un proprio titolare ed è autonoma. Privacy policy | Policy utilizzo | Cookie policy